Dynastation系列 DSR系列
|

|
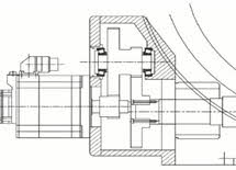
Dynastation DSR 系列最適合于負荷大,高精密使用條件的
伺服機電驅動型高精密減速器。
(可以裝最大 20噸)
由于大口徑中孔和薄型規格,設置安裝方便。
而且采用高精密的Barrel Cam構造,
具備高精密的位置決定能力和高剛性的特性。
|
產品特點
-
高精度,高剛性的Barrel Cam構造
HANNZ MOTROL獨有的凸輪制造技術,
而且由于精密的Barrel Cam構造和伺服機電驅動,
達成高精度的位置決定。
-
大口徑輸出面和低中心設計
DSR 系列是同一種行業產品當中,
從地面到輸出回轉版面的高度最低的產品。
這會提高工作人員的安全性和工作效率。
-
可選擇附加減速器
DSR 系列內裝附加的齒輪減速器,
小容量的伺服機電,也可以得到大量動力。
-
與外殼一體型軸承
獨自制作的一體性4點支持軸承,能實現高剛性以及省維修費用。
由于加工面的加工精度直接影響到輸出面的一體型軸承的特性,
對于搖動,真圓度,回轉平坦度方面會得到最佳的結果。
| 型號 |
規格 |
- |
減速比 |
- |
馬達安裝位置 |
電纜接口位置 |
安裝姿勢 |
- |
選項 |
| DSR |
220 |
|
120 |
|
R |
1 |
H |
|
B |
| DSR |
300 |
|
120 |
|
R |
2 |
V |
|
T M |
| DSR |
500 |
|
225 |
|
R |
3 |
H |
|
T B |
| 型號 |
規格 |
減速比 |
| DSR |
120 |
100 |
如左邊的表上沒有您要的減速比, 請給我們聯系商量。 |
| 160 |
120 |
| 220 |
120 |
| 300 |
120 |
| 400 |
180 |
| 500 |
225 |
-
馬達位置
-
電纜接口位置
-
1 往本體方向
-
2 往本體反方向
-
3 往輸出面方向
-
4 往輸出面反方向
-
安裝姿勢
-
H 平面安裝
-
V 豎直安裝
※DSR500只適用于平面安裝. 不適用豎直安裝.
Z其他
因油封的特性, 不允許把輸出面往地下面安裝的姿勢
-
(選項)
-
T 輸出面加個加工孔
-
B 外殼上加個加工孔
-
M 豎直方向安裝時
※可以提供安裝釘子
|
| |
|
|